Appartamento

Cod. Riferimento: IM-25433
279.000 €
virtual tour!

Descrizione

CESENATICO | VILLALTA
Appartamento | 3 Locali | 106 Mq comm.li

IMMOBILE:
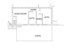
Piano Terra rialzato: Soggiorno cucina open space - Camera da letto matrimoniale - Camera da letto singola - Bagno - Corte privata
Piano Interrato: Tavernetta - Bagno - Garage

FABBRICATO:
Costruito nel 2012

SERVIZI:
Garage
Tavernetta

NOTE:
Soluzione situata in contesto di sei unità abitative, senza spese condominiali.
L'appartamento si trova al piano terra con ingresso indipendente, corte privata e collegamento diretto con cantina e garage al piano inferiore.
L'immobile è dotato di riscaldamento a pavimento, aria condizionata, infissi a doppio vetro, zanzariere, inferriate e sistema di allarme.
Nella vendita è compreso l'arredamento.
Questo immobile è un’esclusiva Casà, contattata i nostri consulenti per maggiori informazioni.

Info:
Peter Bagnolini | +39 335 5381981
Michele Siboni | +39 331 2665374

Le presenti informazioni non costituiscono elemento contrattuale.

Caratteristiche

Camere: 2
Bagni: 2
Riscaldamento: Autonomo
Tipo Riscaldamento: A pavimento
Combustibile Riscald.: Metano
106 MQ comm.
Stato immobile: Buono
Giardino: Privato
Giardino MQ: 55
Garage: Doppio
Classe ener.: C
Consumo ipe: 66.84 kwh/mq
Locali: 3
Cantina: SI
Arredamento: SI
Condizionatore: SI
Piano: Rialzato
Totale piani: 3
Su più livelli
Tot. unità presenti: 6
Anno costr.: 2012
Cucina: Abitabile
Spese condominiali: 150 €
Spese rata: Annuale
Esposizione: Ovest
Porta Blindata
Allarme
Cancello Elettrico
VideoCitofono
Fibra Ottica
Accesso disabili
Taverna

Dove si trova?

Peter Bagnolini

Contattaci

Riferimento IM-25433

Autorizzo il trattamento dei miei dati personali in base art. 13 del reg. eu 679/2016
[X]
Per ulteriori informazioni consulta la nostra Cookie Policy