Appartamento

Cod. Riferimento: IM-25332
299.000 €

Descrizione

GATTEO I FIUMICINO
Appartamento | 3 Locali | 132 Mq comm.li

IMMOBILE
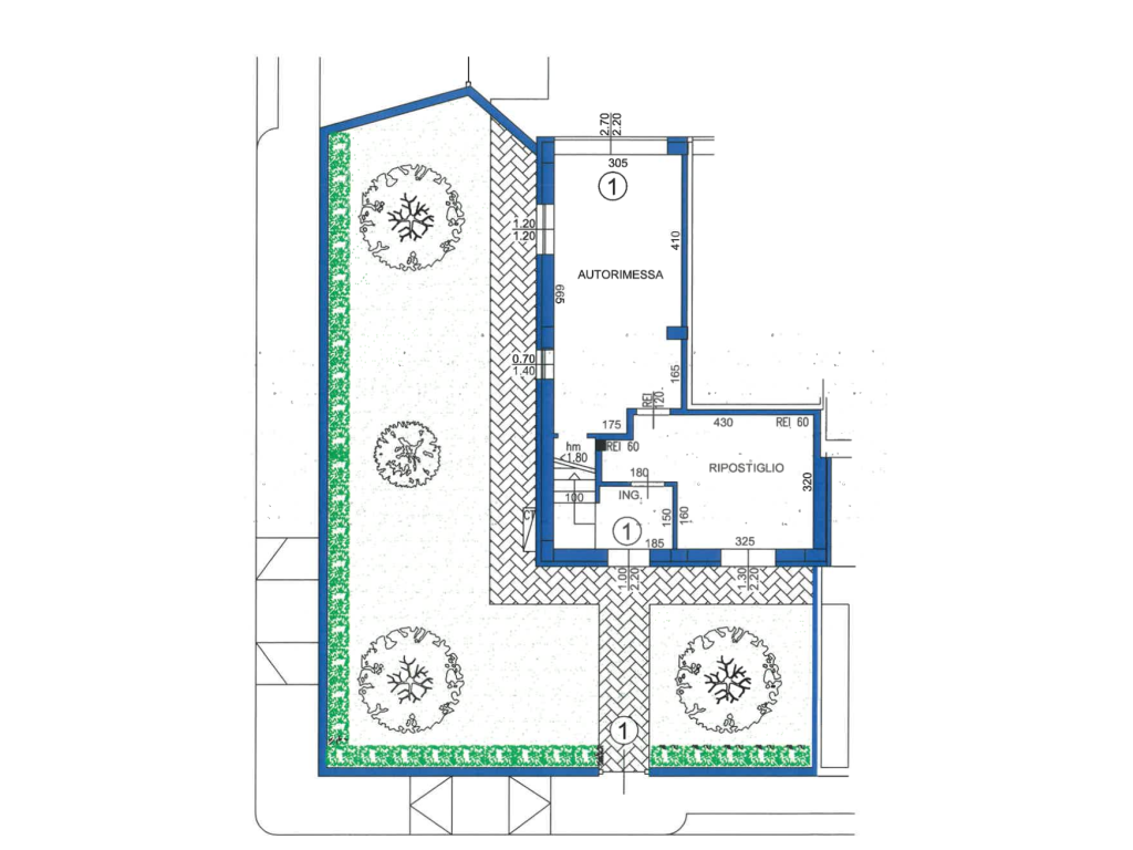
Piano Terra: Autorimessa - Ripostiglio - Bagno - Corte
Piano Primo: Soggiorno cucina open space - 2 Camere da letto - Bagno - 2 Balconi

FABBRICATO:
Consegna estate 2026
Classe energetica A4

SERVIZI:
Garage

NOTE:
Soluzione situata in zona residenziale, vicino a tutti i servizi di prima necessità.
L'appartamento, con ingresso indipendente e corte privata, presenta ampi e luminosi spazi abitativi e verrà consegnato ultimato con infissi in PVC con doppio vetro, predisposizione impianto di raffrescamento, predisposizione aria condizionata, aspirazione centralizzata, impianto di ricambio d'aria, impianto fotovoltaico di 3 kw.
I contributi per allacciamenti acquedotto, Enel sono a carico dell'acquirente.
Immobile soggetto ad Iva 4% acquisto prima casa, possibilità di detrarre i costi ricostruzione del garage e possibilità'di acquistare un posto auto.

Info:
Peter Bagnolini | +39 335 5381981
Daniela Amadori | +39 393 8837716

Le presenti informazioni non costituiscono elemento contrattuale.

Caratteristiche

Camere: 2
Bagni: 2
Riscaldamento: Autonomo
Tipo Riscaldamento: A pavimento
Combustibile Riscald.: Pompa di calore
132 MQ comm.
Stato immobile: Nuovo
Giardino: Privato
Giardino MQ: 103
Posto auto: 1 posto
Garage: SI
Classe ener.: A4
Locali: 3
Balcone: SI, 2 balconi
Condizionatore: Predisposizione
Piano: Terra
Totale piani: 3
Su più livelli
Tot. unità presenti: 8
Anno costr.: 2026
Cucina: A vista
Porta Blindata
VideoCitofono

Dove si trova?

L'agenzia non ha ancora indicato la localizzazione dell'immobile, contattala per tutti i dettagli.

Peter Bagnolini

Contattaci

Riferimento IM-25332

Autorizzo il trattamento dei miei dati personali in base art. 13 del reg. eu 679/2016
[X]
Per ulteriori informazioni consulta la nostra Cookie Policy