Loft

Cod. Riferimento: IM-25184
280.000 €

Descrizione

FORLIMPOPOLI | CENTRO
Loft | 3 Locali | 180 Mq Comm.li

IMMOBILE :
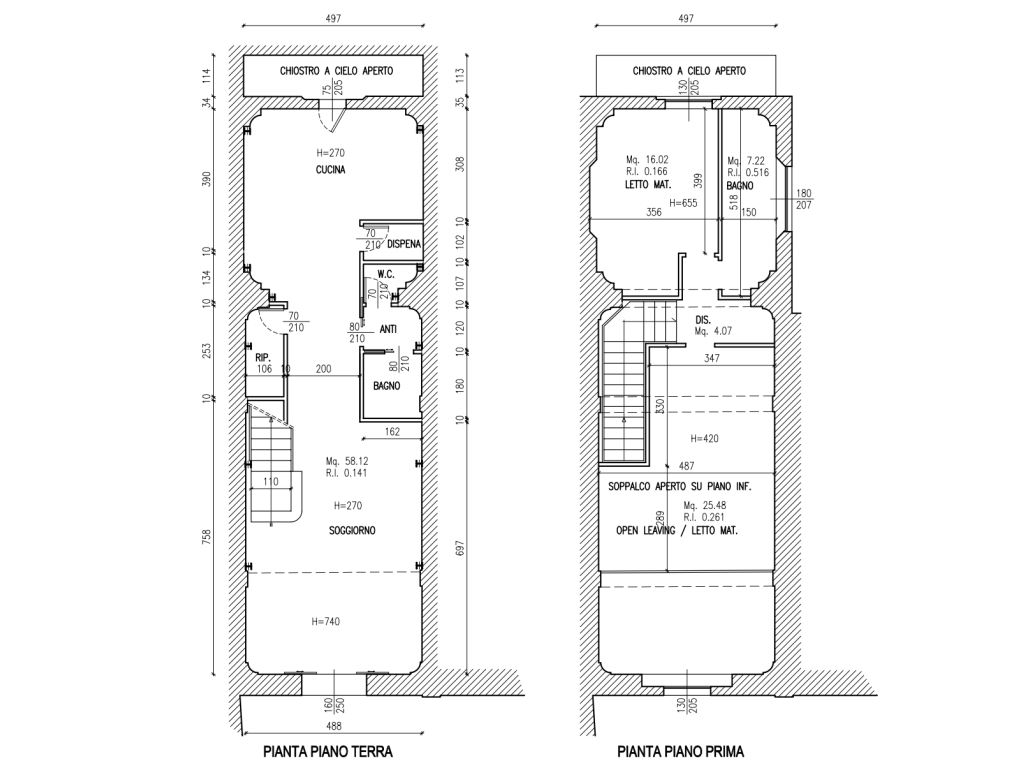
Piano Terra: Soggiorno - Bagno - Cucina - Dispensa - Ripostiglio - Corte
Piano Primo: Camera da letto matrimoniale - Soggiorno - Bagno

FABBRICATO :
Costruito nel 1200
Ristrutturato nel 2010

NOTE:
Ex chiesa sconsacrata del 1200, recentemente restaurata e ristrutturata, con perfetta integrazione tra elementi storici e comfort moderni come finestre elettriche e riscaldamento a pavimento.
Gli spazi interni, molto ampi, offrono la possibilità di personalizzazioni.
Il piano terra è pavimentato in cotto, mentre il soppalco è in legno di rovere, con soffitto affrescato, cupola e finestre elettriche.
Porta d’ingresso in vetro elettrica e portone in legno a pacchetto.
Questo immobile è un'esclusiva Casà, contatta i nostri consulenti per maggiori informazioni.

INFO:
Arianna La Greca | +39 346 7400249 | a.lagreca@casaconlaccento.it
Casà Immobiliare Forlì | 0543 1900683 | forli@casaconlaccento.it

Le presenti informazioni non costituiscono elemento contrattuale.

Caratteristiche

Camere: 1
Bagni: 2
Riscaldamento: Autonomo
Tipo Riscaldamento: A pavimento
Combustibile Riscald.: Metano
180 MQ comm.
Stato immobile: Ristrutturato
Classe ener.: In fase di definizione
Locali: 3
Piano: Terra
Totale piani: 2
Su più livelli
Anno ristr.: 2010
Cucina: Angolo cottura
Fibra Ottica
Accesso disabili

Dove si trova?

Arianna La Greca

Contattaci

Riferimento IM-25184

Autorizzo il trattamento dei miei dati personali in base art. 13 del reg. eu 679/2016
[X]
Per ulteriori informazioni consulta la nostra Cookie Policy