Villa

Cod. Riferimento: IM-24962
1.280.000 €
virtual tour!

Descrizione

RIMINI | VISERBA
Villa | 8 Locali | 310 Mq comm.li

IMMOBILE:
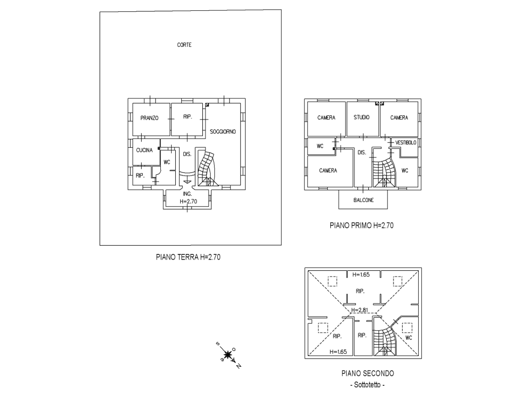
Piano terra: Soggiorno - Cucina - Sala da pranzo - Bagno - Lavanderia
Piano primo: 3 Camere da letto - Studio - Cabina armadio - 2 Bagni - Terrazzo
Piano secondo: Mansarda - Bagno

FABBRICATO:
Costruito 1900
Ristrutturazione nel 2005
Ristrutturazione nel 2018

SERVIZI:
Cantina
Lavanderia

NOTE:
Villa unifamiliare, recentemente ristrutturata, situata in una zona residenziale, ben servita e a pochi passi dal mare.
Al piano terra si trova la zona giorno composta da soggiorno, cucina, sala da pranzo, lavanderia e un bagno, mentre al primo piano la zona notte caratterizzata da 3 camere da letto, uno studio, una cabina armadio e due bagni.
E' dotato di caldaia a condensazione e impianto fotovoltaico da 5Kw.
La proprietà è circondata da un giardino, dotato di impianto di irrigazione, di oltre 350 mq con uno spazio ideale anche come posto auto.
Possibilità di ricavare ulteriori camere da letto in mansarda.
L'arredamento di design, scelto con cura è già incluso nella vendita.

Info:
Luigi Scanacapra | +39 393 0527075
Filippo Zamagni | 0547 672521

Le presenti informazioni non costituiscono elemento contrattuale.

Caratteristiche

Camere: 3
Bagni: 4
Riscaldamento: Autonomo
Tipo Riscaldamento: Radiatori
Combustibile Riscald.: GAS
310 MQ comm.
Stato immobile: Ristrutturato
Giardino: Privato
Giardino MQ: 360
Posto auto: SI
Classe ener.: In fase di definizione
Locali: 8
Terrazzo: SI
Mansarda: SI
Cantina: SI
Arredamento: SI
Condizionatore: SI
Totale piani: 3
Su più livelli
Tot. unità presenti: 1
Anno costr.: 1900
Anno ristr.: 2018
Cucina: Abitabile
Esposizione: Nord Est Sud Ovest
Porta Blindata
Allarme
Cancello Elettrico
Fibra Ottica
Idromassaggio
Accesso disabili

Dove si trova?

L'agenzia non ha ancora indicato la localizzazione dell'immobile, contattala per tutti i dettagli.

Luigi Scanacapra

Contattaci

Riferimento IM-24962

Autorizzo il trattamento dei miei dati personali in base art. 13 del reg. eu 679/2016
[X]
Per ulteriori informazioni consulta la nostra Cookie Policy